SOLUZIONE INDIPENDENTE CON GIARDINO RISTRUTTURATO

In vendita
2 locali
Macherio
123.000 €
Descrizione
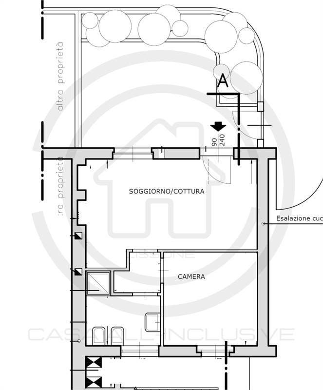
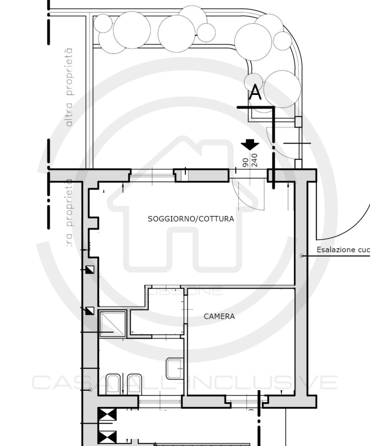
MACHERIO - SOLUZIONE INDIPENDENTE CON GIARDINO PRIVATO COMPLETAMENTE RISTRUTTURATA DI 60 MQ.

Splendida soluzione completamente ristrutturata con ingresso indipendente su aria esterna di proprietà ZERO SPESE CONDOMINIALI, a confine con il comune di Lissone.

Ingresso a piano terra, dove troviamo uno splendido soggiorno con cucina a vista, il tutto rifinito con materiali di pregio tra cui pavimentazione in parquet, nicchie e armadi a muro, comodo disimpegno con lavanderia e armadio a muro, splendido bagno finestrato completamente ristrutturato con doccia incassata a muro con nicchie e aspirazione infine troviamo una luminosa camera matrimoniale.
Per terminare comoda cantina ripostiglio esterna.

Possibilità arredo completo da quantificare a parte

Soluzione ristrutturata completamente nel 2020, libera da subito rifinita con tutti i materiali extra capitolato.

il presente annuncio può contenere errori e/o omissioni e non costituisce alcun vincolo contrattuale.
Caratteristiche principali
Codice:
MACHERIO15
Città:
Macherio
Categoria:
2 locali
Locali:
2
Camere:
1
Bagni:
1
Mq:
60
Mq Giardino:
40
Piano:
Terra
Anno:
1980
Anno ristrutturazione:
2020
Classe energetica:
D
Stato Immobile:
Nuovo
Grado:
Signorile
Posizione:
Centro
Panorama:
Vista Giardino
Orientamento:
Ovest Est
Lati Liberi:
2
Giardino:
Privato
Arredi:
Arredato
Tipo Soggiorno:
Soggiorno
Tipo Cucina:
A Vista
Riscaldamento:
Autonomo
Tipo Riscaldam.:
Caldaia a Condensazione
Tipo Impianto:
Radiatori
Fonte Energetica:
Gas
Acqua Calda:
Autonoma
Raffrescamento:
No
Infissi:
PVC Triplo Vetro
Serramenti:
Ottimo
Persiana:
Tapparella PVC
Pavim. Giorno:
Parquet
Pavim. Notte:
Parquet
Pavim. Cucina:
Parquet
Pavim. Bagno:
Parquet
Accesso Disabili:
Nessuna Barriera
Accesso interno disabili:
Ingressi adattati
Isolamento:
Presente
Isolamento termico:
Cappotto interno
Isolamento acustico:
Isolamento pareti
Destinato a residenti:
Si
Accessori
Armadio a Muro
Fibra Ottica
Impianto Satellitare
Ingresso Indipendente
Porta Blindata
Rete Dati
Ripostiglio
Tripli Vetri
Mappa
VIA MONTELLO, 13 - Macherio (MB)
Virtual tour
Planimetrie
Qr Code
Richiedi informazioni
Invia
Cookie preference